A dessert cafe that hits the sweet spot

 

Chocolat is a dessert cafe designed to embody these three key words: 
Comfort, Indulgence, & Taste. A modern casual take on a typical French Patisserie, the space introduces playful colours and textures that emulate chocolate. Patrons are welcomed with brown tones accented with pastel colours, which bring warmth into the space and is almost reminiscent of a quaint neighbourhood cafe. Chocolat features coffered ceilings that resemble a bar of chocolate and white marble floors that offer contrast & elegance- perfect for dessert connoisseurs! 
 

 
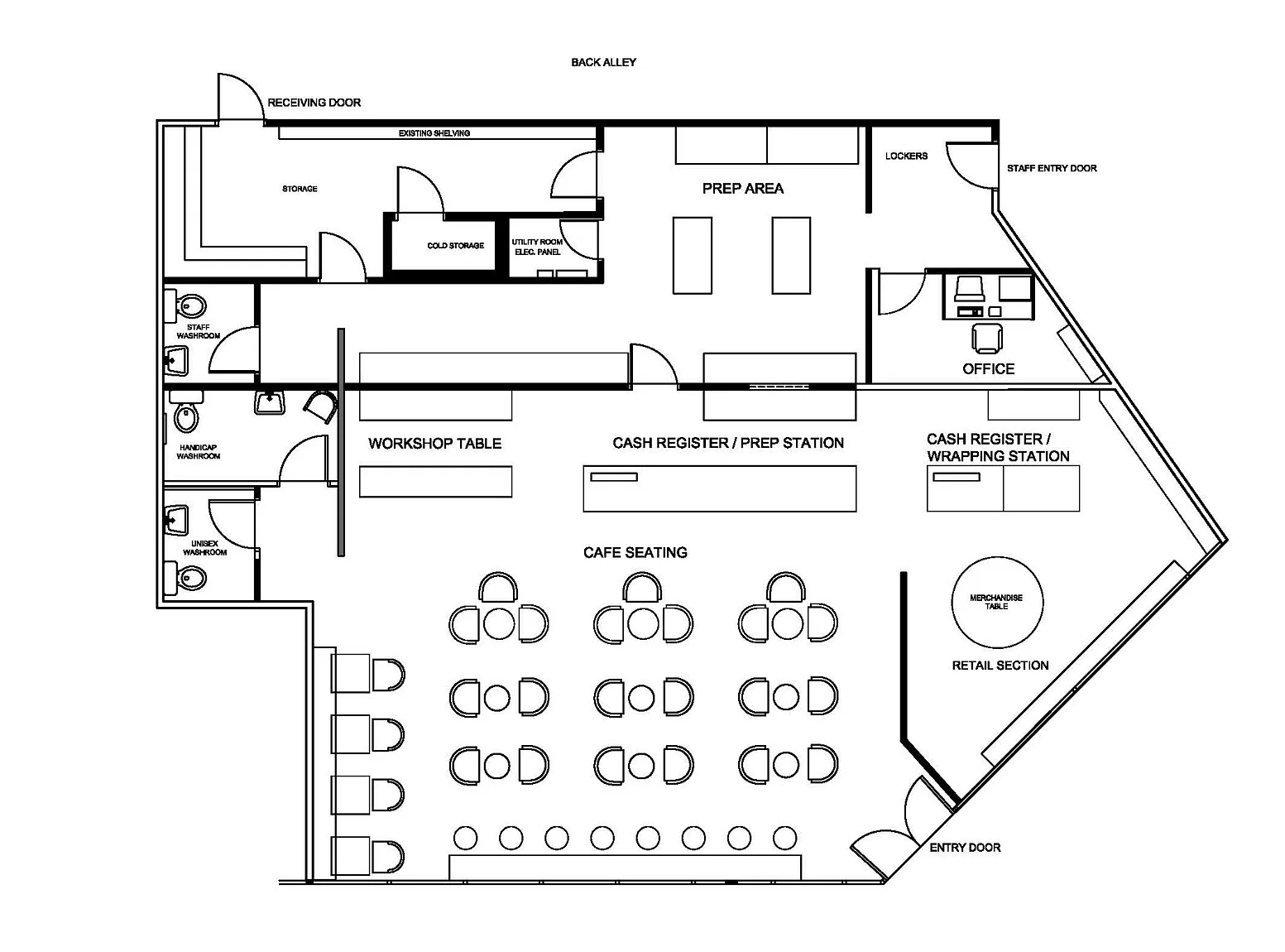
FURNITURE PLANAutoCad

FURNITURE PLAN

AutoCad

PRESENTATION PLANPhotoshop

PRESENTATION PLAN

Photoshop

REFLECTED CEILING PLANAutoCad

REFLECTED CEILING PLAN

AutoCad

SEATING AREASketchUp + Photoshop

SEATING AREA

SketchUp + Photoshop

BANQUETTE SEATINGSketchUp + Photoshop

BANQUETTE SEATING

SketchUp + Photoshop

RETAIL AREASketchUp + Photoshop

RETAIL AREA

SketchUp + Photoshop